Stan 1S+DB za prodaju, Zadar, 187 440 €

Borik, novogradnja, jednosobni stan u prizemlju, S1

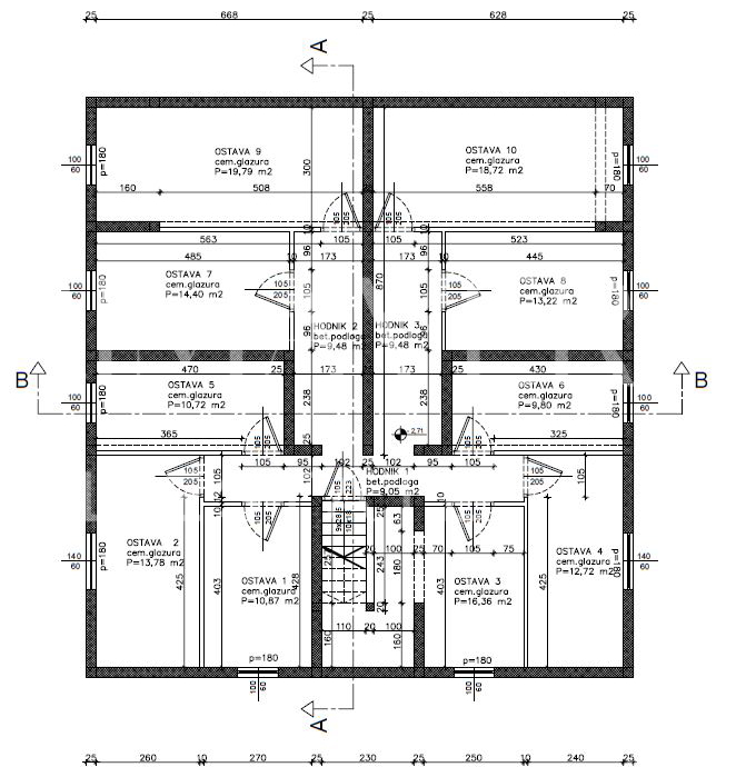
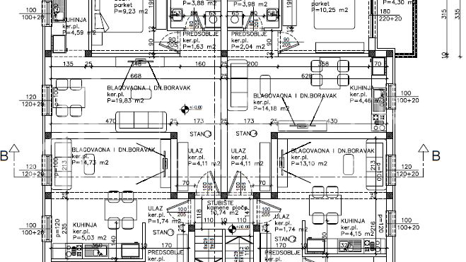
Novogradnja, Borik – zgrada s ukupno 9 stambenih jedinica. Zgrada sadrži podrum, prizemlje i dva kata. U podrumu su smještene ostave, a stambene jedinice raspoređene su na prizemlju, 1. i 2. katu.

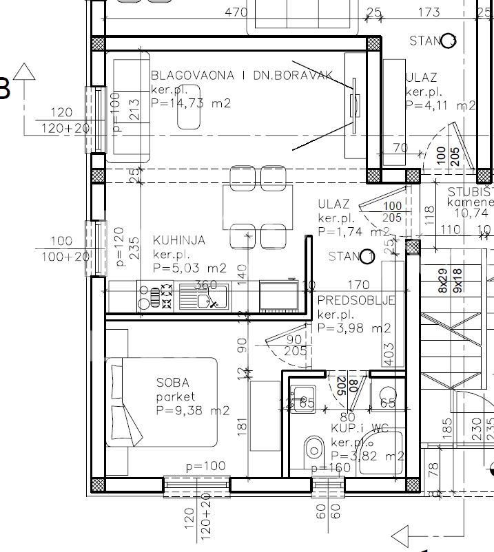
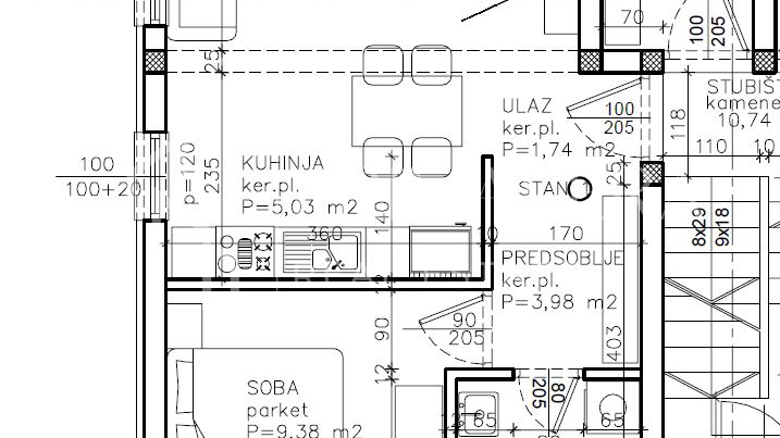
Stan oznake S1, na prizemlju zgrade, sadrži ulaz (1.74 m2), predsoblje (3.98 m2), dnevni boravak s blagovaonicom (14.73 m2) i kuhinjom (5.03 m2), spavaću sobu (9.38 m2) i kupaonicu (3.82 m2). Netto stambena površina stana iznosi 38,68 m2. Pripada mu ostava br. 1 u podrumu zgrade te jedno vanjsko parkirno mjesto. Ukupna obračunska površina stana i pripadaka iznosi 46,86 m2.

Oprema:

Vanjska stolarija biti će PVC, troslojna stakla s komarnicima i roletama na električno podizanje. Ulazna vrata biti će protuprovalna i protupožarna. Ovisno o fazi gradnje, kupcu se ostavlja mogućnost odabira keramike ili parketa. U svim prostorijama stana će biti ugrađeno podno grijanje na struju. Klima uređaji biti će ugrađeni u spavaćoj sobi te u dnevnom boravku. Zgrada se oblaže termoizolacijom debljine 10cm, što će rezultirati energetskim certifikatom oznake A+. Završetak projekta i useljenje predviđeno je na proljeće 2026.

INVESTITOR JE PRAVNA OSOBA U SUSTAVU PDV-a PA KUPAC NE PODLIJEŽE OBVEZI PLAĆANJA POREZA NA PROMET NEKRETNINAMA PRILIKOM KUPNJE OVE NEKRETNINE.

Lokacija:
Zgrada je smještena na odličnoj lokaciji, u blizini trgovine, vrtića, škole i ostalih sadržaja, a plaža je udaljena oko 900 m. Borik je jedna od najljepših zadarskih četvrti, zbog odlične pozicije jednako je pogodna za život, ali i za ljetovanje odnosno turizam.
Zbog lijepih i lako dostupnih kupališta posebno je zanimljiv obiteljima s djecom, a raznovrsnost sportskih sadržaja u mjestu i okolici te blizina centra Zadra, Poluotoka, čine ga zanimljivim mladima i ljubiteljima aktivnog odmora. Duga šetnica na kojoj je uređena plaža, vodi prema lokalnim marinama i lučicama, a sa šljunčane obale pruža se pogled na otoke zadarskog arhipelaga. Odlično je povezan dio grada linijama gradskog prijevoza, ima brojne restorane, kafiće, noćne klubove i parkove za djecu.



Za sve dodatne informacije ili obilazak budite slobodni kontaktirati nas.

Julija Bolić
+385 98 184 4519
info@primavera-realestate.hr
PRIMAVERA REAL ESTATE d.o.o.
Polačišće 2, Zadar

Osnovne informacije

  • Šifra objektaID-196
  • Prodajna cijena187 440 € (1 412 267 kn)
  • LokacijaZadar, Borik (23000)
  • Površina46,86 m2
  • Tip stana1S+DB
  • Energetski razredU izradi
  • Broj soba1
  • Broj spavaćih soba1
  • Broj kupaonica1
  • Kat opisnoPrizemlje
  • Broj etažaJednoetažni
  • Ukupno katova2
  • Vrsta zgradeStambena
  • Godina izgradnje2025
  • Br. parkirnih mjesta1

Razna svojstva

  • Ostava (izba)

Grijanje

  • Podno grijanje
  • Struja
  • Klima

Instalacije

  • Struja
  • Voda
  • Kanalizacija

Stanje zgrade

  • Novogradnja

Dokumentacija

  • Građevinska dozvola

Prikaz nekretnine na karti

Kontaktiraj agenta

Julija Bolić