Građevinsko zemljište za prodaju, Nin, 63 500 €

Poljica Brig, građevinsko zemljište s projektom za kuću s bazenom

Prodaje se građevinsko zemljište površine 379 m2 u naselju Poljica Brig, na samo 10ak minuta vožnje udaljeno od grada Zadra. Zemljište se nalazi uz glavnu cestu, okruženo novim i luksuznim objektima. Za zemljište je izrađen kompletan projekt moderne arhitekture kuće s bazenom te predan zahtjev za građevinsku dozvolu. Budućem vlasniku to je znatna ušteda vremena i brža realizacija projekta, bez dugotrajnog procesa projektiranja.
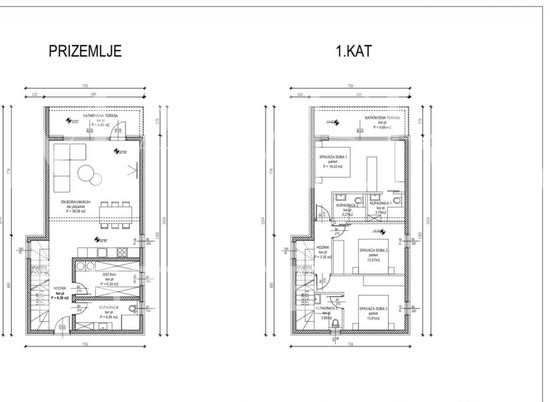
Kuća je projektirana kao katnica, a stambeni prostor je raspoređen kroz prizemlje i kat. Prizemlje obuhvaća: ulazni prostor, kuhinju, blagovaonicu i dnevni boravak otvorenog koncepta s izlazom na terasu i bazen, kupaonicu, spremište/praonicu. Prvi kat sadrži hodnik, tri spavaće sobe s vlastitim kupaonicama, od kojih master soba ima i garderobu i balkon. U dvorištu je predviđen bazen, parking te uređeni vanjski prostor. Ova nekretnina idealna je za miran obiteljski život, ali potencijalno i kao investicija za turistički najam ili kao nekretnina za odmor.

Lokacija:
Poljica Brig je mirno dalmatinsko mjesto smješteno u zaleđu, samo nekoliko kilometara udaljeno od grada Zadra i Nina, te je sve popularnije za život i turizam. Posljednjih godina bilježi sve veću potražnju kako kod domaćih, tako i stranih investitora. Ovo naselje predstavlja savršen spoj privatnosti, života u okruženju prirode i blizine urbanih sadržaja, što je čini vrlo privlačnom za gradnju obiteljskih kuća i kuća za odmor. Ova nekretnina idealna je prilika za investitore ili one koji žele izgraditi modernu kuću za život u jednom od najpoželjnijih dijelova zadarskog područja.



Za sve dodatne informacije ili obilazak budite slobodni kontaktirati nas.

Julija Bolić
+385 98 184 4519
info@primavera-realestate.hr
PRIMAVERA REAL ESTATE d.o.o.
Polačišće 2, Zadar

Osnovne informacije

  • Šifra objektaID-240
  • Prodajna cijena63 500 € (478 441 kn)
  • LokacijaNin, Poljica-Brig (23232)
  • Površina379,00 m2
  • Vrsta zemljištaGrađevinsko zemljište

Prikaz nekretnine na karti

Kontaktiraj agenta

Julija Bolić